Zipper closure
1/5 zip athletic pullovers for men. Stretchy, lightweight, fast-drying
fabric for superior performance.
REGULAR FIT - US standard sizes. An athletic fit that sits close to the
body
for a wide range of motion, designed for optimal performance and all day
comfort.
FEATURES - Quarter zip closure;Thumbholes on long sleeves to keep them
in
place during workout
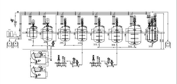
FCT 型涂料设备,根据不同的投资状态和客户需求,可以分成FCT-1000型、FCT-3000型、FCT-10000型、全自动涂料生产线等几种规格,也可以根据客户的实际需求定制。
FCT系列涂料成套设备,采用德国技术,应用国内领先的篮式分散研磨技术,研磨效率高,分散效果好,实现了从配料、分散研磨至成品过滤包装的连续性生产,大大降低了劳动强度,提高了产品质量。
|
序号
|
设 备 名 称
|
参数
|
数量
|
备注
|
|
1
|
粉料计量系统
|
|
1
|
可选
|
|
2
|
液体计量系统
|
|
1
|
可选
|
|
3
|
分散釜
|
1500L,2000L
|
1
|
|
|
4
|
篮式研磨机
|
22Kw,30Kw
|
2
|
|
|
5
|
调漆釜
|
2000L,3000L,3000L
|
3
|
|
|
6
|
搅拌器
|
5.5Kw,5.5Kw,7.5Kw
|
3
|
|
|
7
|
过滤器
|
0.5m2
|
3
|
|
|
8
|
灌装机
|
|
1
|
可选
|
|
9
|
水处理系统
|
|
1
|
可选
|
|
10
|
真空系统
|
|
1
|
可选
|
|
11
|
操作平台
|
|
1
|
|
|
12
|
管路系统
|
|
1
|
|
|
13
|
电控系统
|
|
1
|
|