description1
Zipper closure 1/5 zip athletic pullovers for men. Stretchy, lightweight, fast-drying fabric for superior performance. REGULAR FIT - US standard sizes. An athletic fit that sits close to the body for a wide range of motion, designed for optimal performance and all day comfort. FEATURES - Quarter zip closure;Thumbholes on long sleeves to keep them in place during workout
产品详情
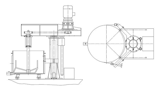
FDB系列碟式搅拌机是一种高效的搅拌混合设备,搅拌器采用三叶碟式浆叶,同时在搅拌工程中抽真空,能有效的提高产品质量,可边搅拌边自动升降,提高生产效率。适用于高粘度腻子,胶粘剂及胶印油墨等有关化工产品的搅拌与混合工艺。
技术参数

型号/参数

电机功率
(Kw)

搅拌桨转速
(rpm)

搅拌桨直径
(mm)

升降行程
(mm)

泵功率
(Kw)

筒直径×高度
(mm)

FDB-600

4~11

0~130

580

700

0.75

600×500

FDB-900

4~15

0~130

880

900

0.75

900×750

FDB-1000

5.5~18.5

0~130

980

1000

0.75

1000×750

FDB-1200

5.5~30

0~130

1120

1200

1.5

1200×1000

CONTACT US